
BIG DITCH BREWING COMPANY CO.
Located in the heart of Lockport, New York, this project transforms the historic post office at 1 East Ave into a dynamic new home for Big Ditch Brewing Company. The adaptive reuse approach preserves the architectural legacy of the structure while introducing new life through three distinct bar spaces, event areas, and a bustling taproom. By blending exposed brick, crafted woodwork, and modern finishes, the design bridges past and present—turning a civic landmark into a vibrant center for community, culture, and craft brewing.
Location: Lockport, New York
Year: 2024
Year: 2024
Tap Room Bar
Design & Construction
The Tap Room Bar serves as the centerpiece of a historic post office turned brewery. The design pairs warm wood finishes with clean industrial lines, creating a contemporary space that still reflects the building’s character. As the primary bar of the three I designed for the project, it anchors the brewery experience while maintaining consistency with the surrounding spaces through materiality and detailing. Careful attention was given to circulation and seating, ensuring the bar functions as both a gathering place and a visual focal point. The result is a space that elevates the brewery’s identity while honoring the building’s historic roots.













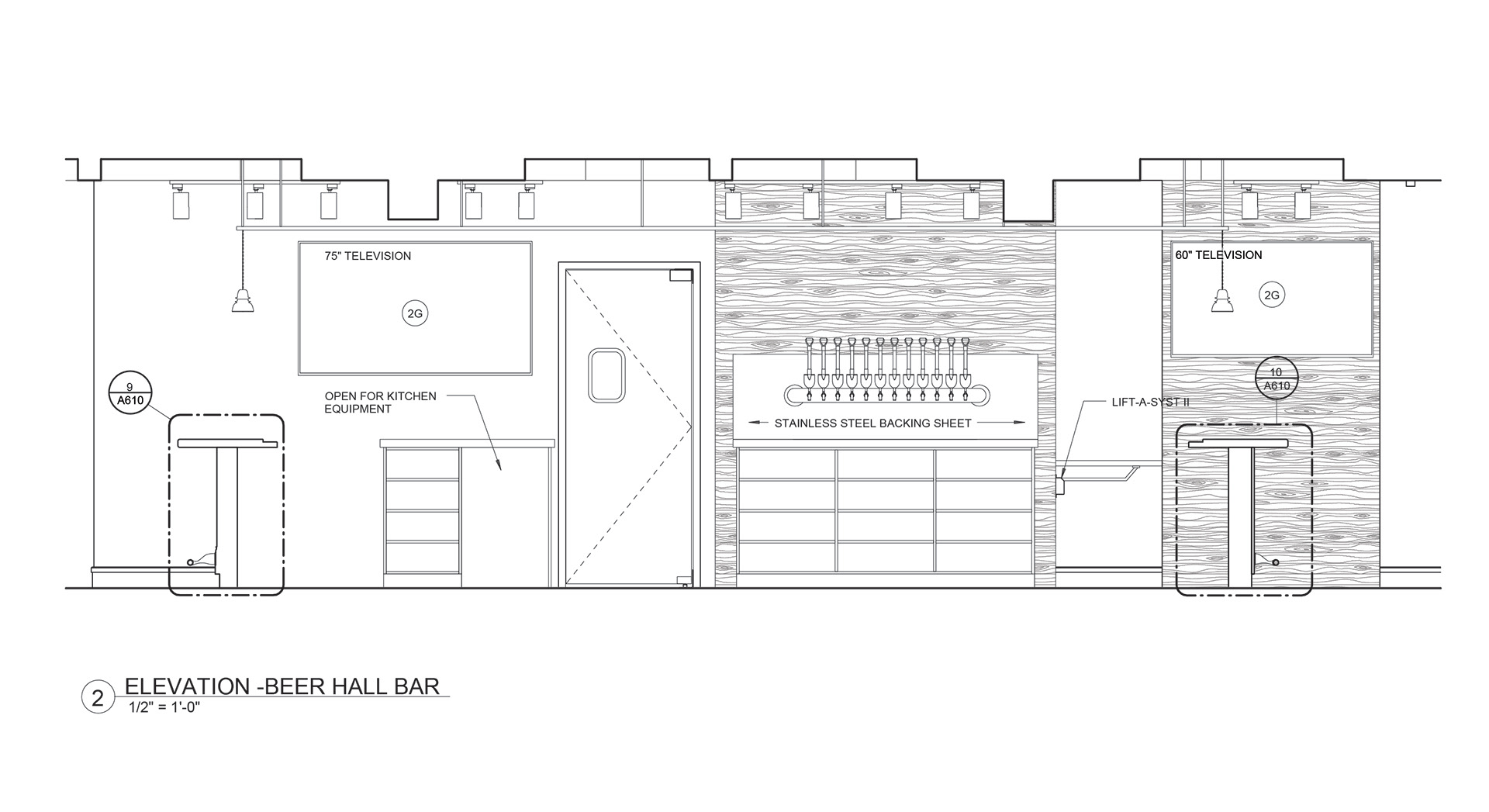
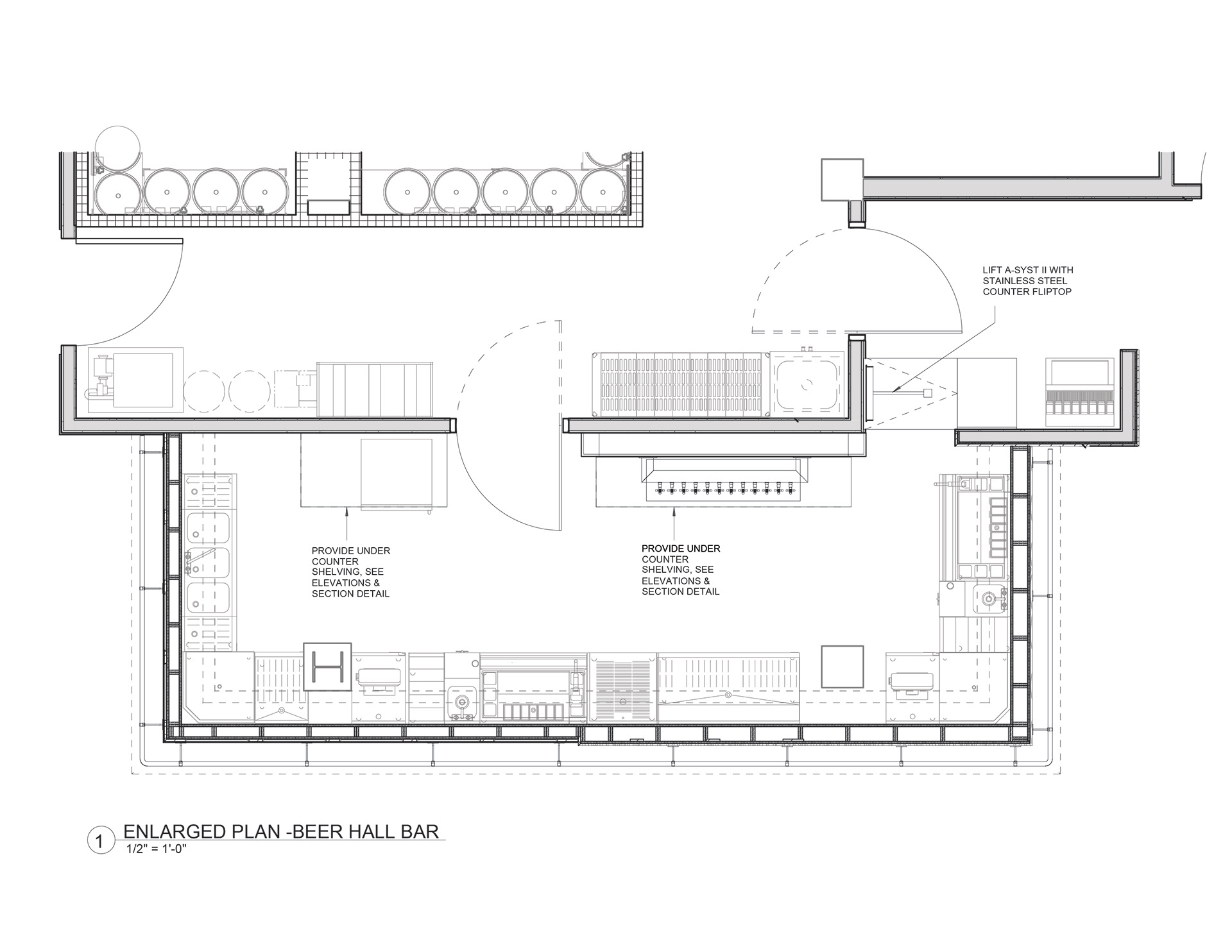
Beer Hall Bar
Design & Construction
Located in the basement of the historic post office, the Beer Hall Bar offers a unique experience from the moment you step below ground. The descent into the building’s foundation reveals a rustic gathering space, defined by exposed brick walls, timber accents, and a warm, communal atmosphere. Long tables and a central bar anchor the space, inviting both intimate conversations and large gatherings. The design celebrates the history of the building while transforming it into a lively and welcoming beer hall, where the character of the past meets the energy of the present.




Event Space Bar
Design & Construction
Tucked within the revitalized post office brewery, the Event Space Bar was designed as a flexible, private venue for gatherings, celebrations, and special functions. Its clean, contemporary layout offers an intimate counterpoint to the larger taproom and beer hall, giving guests a dedicated bar experience without leaving the building. Built with the same refined wood, steel, and stone language as the other spaces, it ties seamlessly into the overall brewery aesthetic. The bar’s compact design makes it highly functional, while still retaining the warmth and atmosphere that define the brewery as a whole.




