
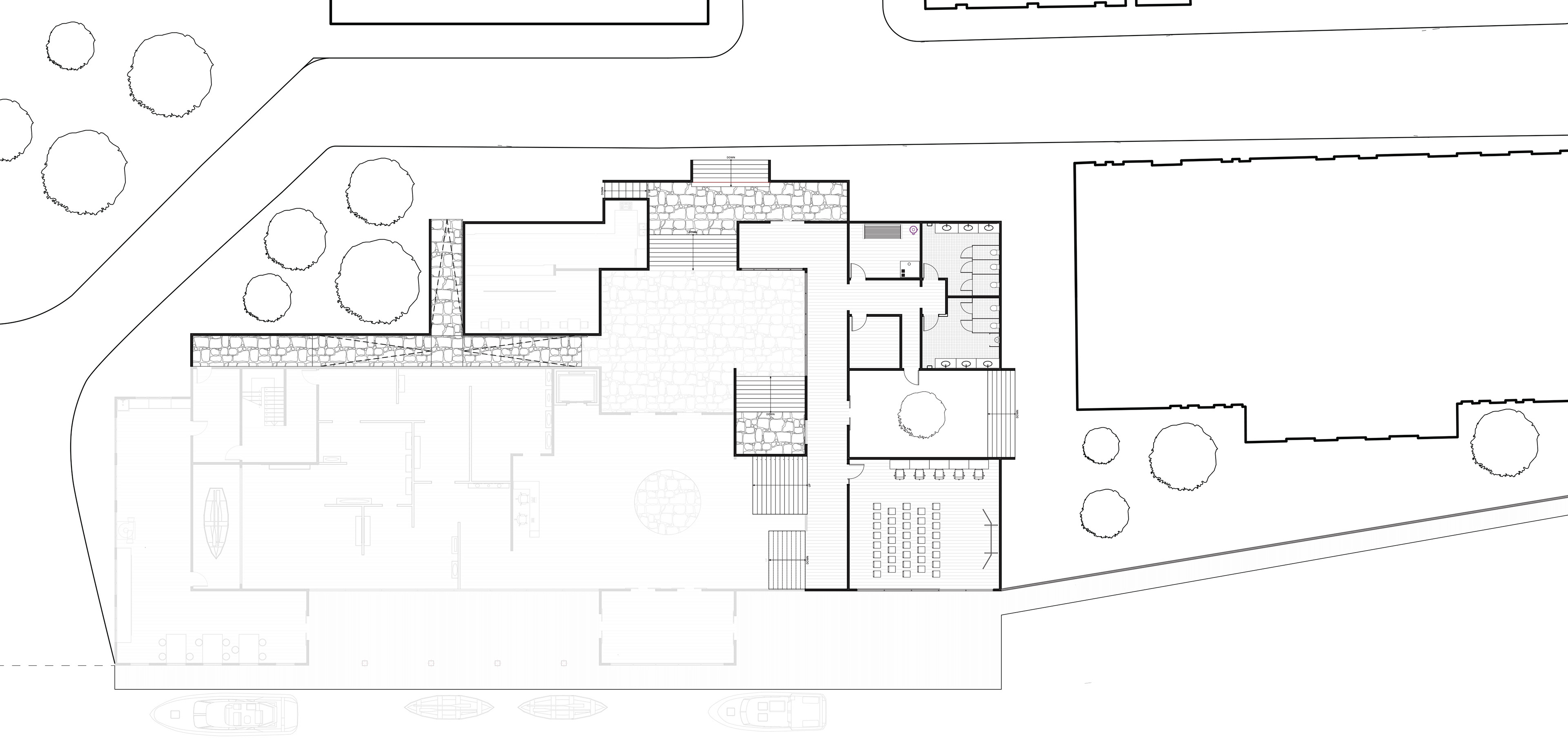
Boating Museum
A graceful and dynamic journey that seamlessly connects visitors from the street level to the serene waterfront location. Inspired by the flow of water, our architectural vision incorporates a series of gradually descending pathways and terraces, mirroring the experience of walking down to a shoreline. Visitors will embark on a sensory exploration as they navigate the gently sloping, meandering walkways, each turn revealing a new perspective of the boats and the picturesque waterfront beyond. This design approach not only enhances the museum's accessibility but also creates an immersive experience that harmonizes with the maritime theme, inviting visitors to connect with the history and culture of our waterfront community.
The museum's unique circulation design is not only functional but also symbolic. It symbolizes the intrinsic connection between our community and the water, highlighting the vital role that maritime heritage has played in our history. Along the descending path, strategically placed viewing points and exhibition spaces will offer glimpses of the boats' fascinating stories, providing educational and interactive opportunities for visitors of all ages. By integrating circulation with storytelling, our architectural design not only celebrates the rich maritime heritage but also fosters a sense of pride and engagement among the local community, ensuring that this museum becomes a beloved and enduring landmark for generations to come.
Location: Tonawanda,, New York
Year: 2022
Year: 2022






Thinking Green
The building's architecture embraces passive design principles, maximizing natural daylight and ventilation while minimizing energy consumption. Additionally, the museum will feature a green roof adorned with native vegetation, not only providing insulation but also enhancing biodiversity and stormwater management. Rainwater harvesting systems will be integrated to irrigate the landscape, and renewable energy sources such as solar panels will power the facility. Through these green initiatives, our museum not only serves as a beacon of maritime heritage but also as a model of sustainable architecture, demonstrating how responsible design can harmonize with the environment while preserving the past for the benefit of the future.



