
Sophomore Thesis
During this semester, our design studio was tasked with a compelling and complex endeavor: the in-depth site analysis and the subsequent exploration of the transformative potential of design within a particular community. Our focus was squarely set upon the charming neighborhood of Blackrock, nestled in the heart of Buffalo, New York. Blackrock, a medium-sized neighborhood, boasts its unique status as a pivotal connection point to the historic Erie Canal and serves as the cherished abode to a thriving community of over six thousand residents.
In order to truly appreciate the multifaceted nature of Blackrock, it is imperative to delve into the rich tapestry of its history, which serves as a foundational pillar upon which this community stands. One cannot help but be captivated by the neighborhood's profound connection to the War of 1812, a chapter of American history that continues to echo through the ages. This historical resonance reverberates not only through the collective memory of its residents but is also etched in the physical landscape itself, manifesting in the form of numerous monuments and commemorative sites that dot the area. It is within this intricate interplay between history and modernity that we find ourselves poised to embark on a semester-long exploration, seeking to understand how architectural design can serve as a catalyst for change within the Blackrock community. The very essence of Blackrock's historical significance, juxtaposed with its contemporary character, presents an ideal canvas upon which our architectural vision can unfold. Our aim is to not only pay homage to the past but also to envision a future that respects the neighborhood's heritage while catalyzing positive shifts that benefit the community as a whole.
Location: Black Rock, New York
Year: 2021
Year: 2021




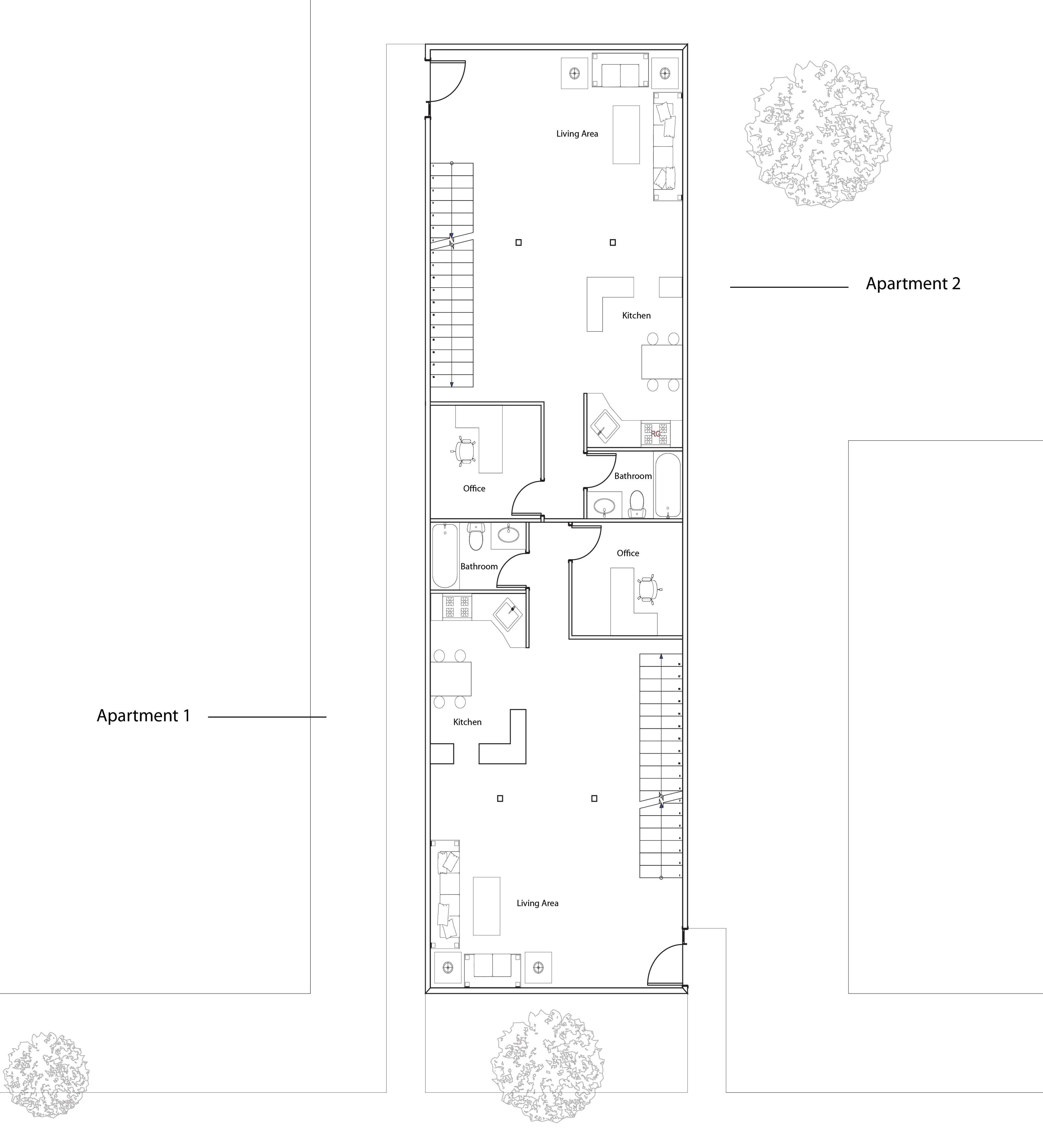
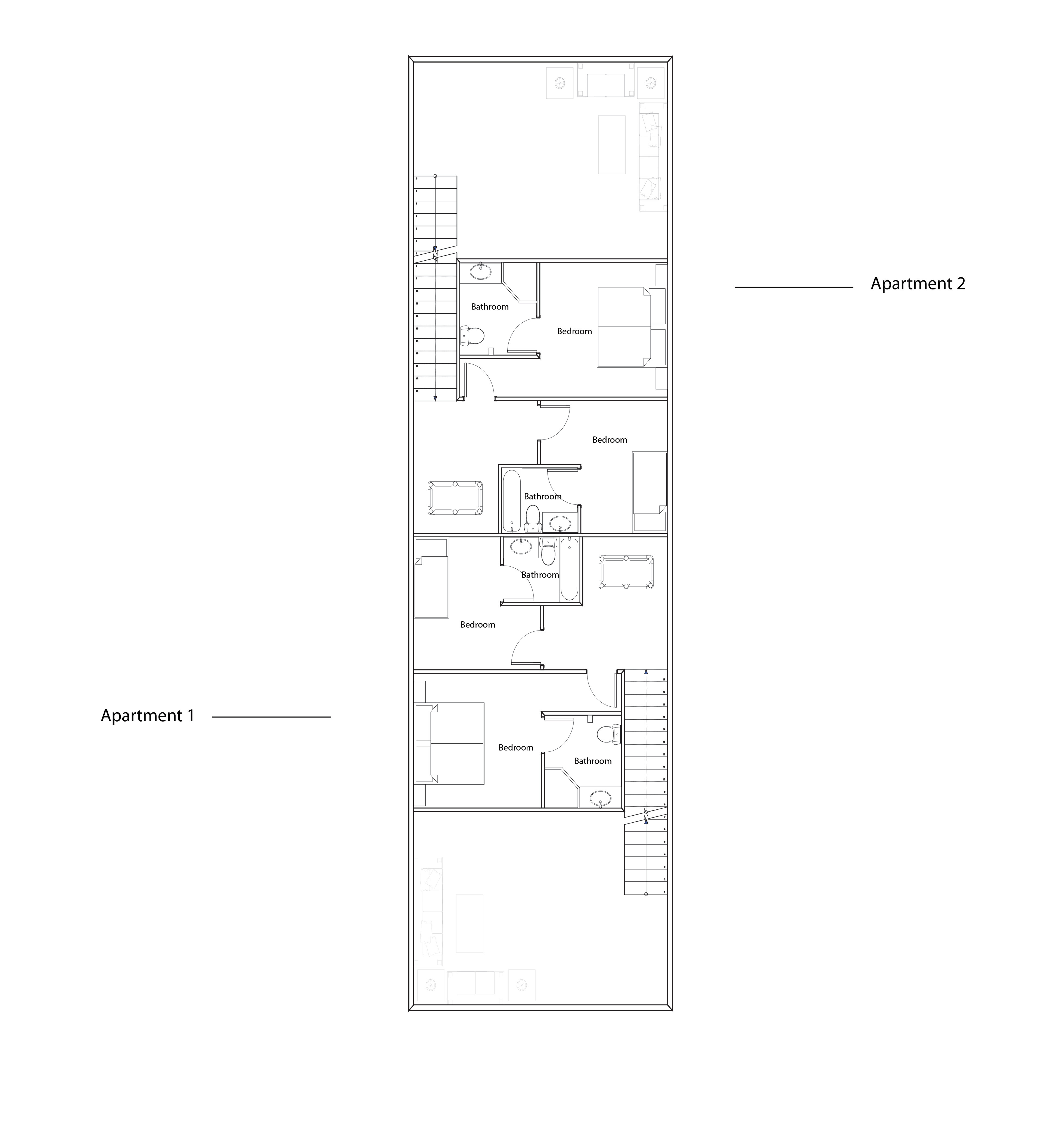
Project 1: Housing
In a bold and innovative architectural endeavor, we embarked on a project that sought to create a harmonious fusion of design elements from two neighboring buildings, giving birth to a unique and striking new residence. The challenge was to seamlessly blend the distinctive characteristics of these neighboring structures into a cohesive architectural narrative while ensuring the new house met the functional needs and preferences of its future occupants.
Drawing inspiration from the rich architectural heritage of the neighboring buildings, we carefully selected key design components that resonated with the historical and cultural context of the area. These included intricate mosaic tile patterns from a mid-century modern gem and the elegant bay windows that provided a contemporary touch. In a departure from the original plan, we introduced glass box windows that added a modern and transparent element to the design, allowing an abundance of natural light to flood the interior spaces. The result was a captivating blend of old and new, where the past was respectfully honored, and the future was embraced through these innovative glass box windows. The new house not only paid homage to its surroundings but also contributed to the evolving architectural tapestry of the neighborhood, serving as a testament to the power of thoughtful design in weaving together the threads of history and innovation.





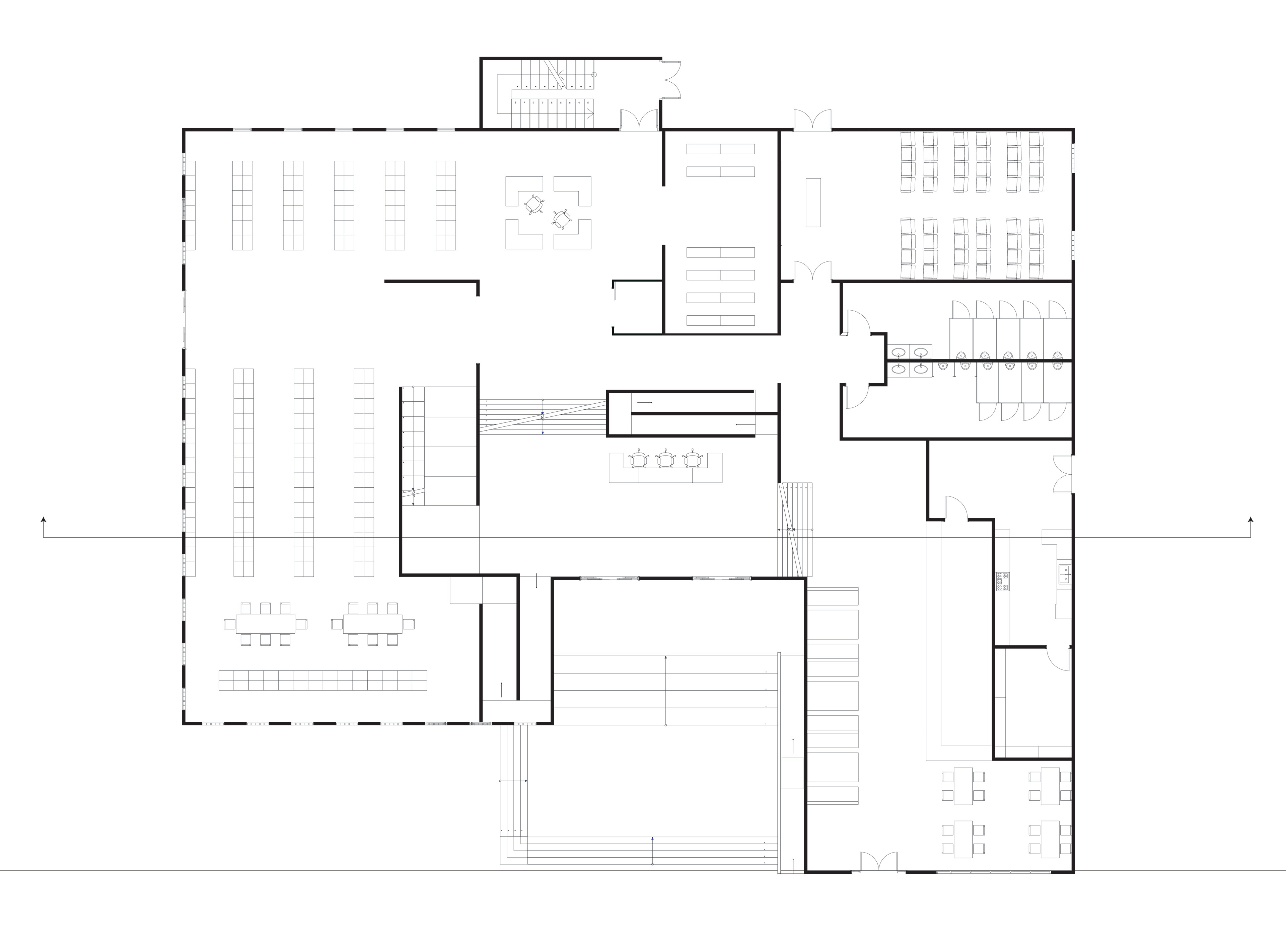
Project 2: Library
In a visionary architectural undertaking, we embarked on a transformative project aimed at breathing new life into the neighborhood by creatively repurposing two neighboring buildings. Our goal was to meld the unique design elements of these adjacent structures while simultaneously addressing the distinct requirements of a community library—a place destined to become the intellectual and social heart of the area.
Our design journey was inspired by the rich architectural tapestry of the two neighboring buildings. We artfully incorporated elements such as the intricate mosaic tile patterns reminiscent of a mid-century modern gem. However, what truly set our project apart was the introduction of expansive glass box windows. These windows not only bathed the interior in an abundance of natural light but also established an atmosphere of transparency, inviting the community to engage with the library's wealth of resources and vibrant activities.
The resulting community library served as a testament to the profound impact of purposeful design on neighborhood revitalization. This rejuvenated space not only paid homage to the architectural legacy of the past but also emerged as a vibrant center for knowledge, culture, and community connections. With its seamless synthesis of historical and contemporary elements, the library not only preserved the neighborhood's heritage but also played a pivotal role in nurturing the community's intellectual and social growth, truly exemplifying the transformative power of thoughtful architecture.











